情報更新日:2026年03月28日/広告有効期限:なし
表示閲覧回数(過去30日間):9
お急ぎの方はお電話からお気軽にどうぞ!
0166-33-4338 営業時間 / 平日 9:30~18:30 定休日 / 不定休
>物件詳細情報
| 基本情報 | |
|---|---|
| 物件番号 | 00003004 |
| 店舗形態 | 事務所, SOHOオフィス |
| オススメ業種 | 医療関係, 塾・学校・教育関係, 美容関係, 物販関係 |
| 物件名 | 日進旭川ビル(旧:旭川緑橋第一生命ビルディング)1階① |
| 物件の状態 | 空き |
| 引越し時期 | 相談 |
| 契約形態と期間 | |
| 所在地・交通 | |
|---|---|
| 所在地 | 北海道旭川市1条通(1〜17丁目)9-50-3 |
| 交 通1 | 石北本線旭川駅 徒歩4分 |
| 交 通2 | - |
| 賃料 | |
|---|---|
| 賃 料 | 賃料未定 |
| 敷 金 |
敷金未定 |
| 礼 金 | 1ヶ月 |
| その他 | |
|---|---|
| 備考 | ・タワーパーキングがございます。(空き状況都度確認) |
| 建物 | |
|---|---|
| 建物構造 | 鉄骨鉄筋コンクリート造 |
| 建物階建て |
地上8階 地下1階 |
| 施工年月 | 1986(昭和61)年 06月 |
| 募集物件の階数 | 地上 1階 ①号室 |
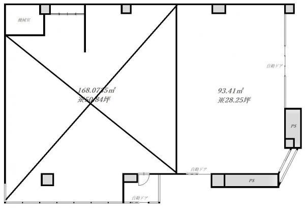
| 契約面積 | 93.39m2(28.25坪) |
| 駐車場 | |
|---|---|
| 状 況 | 近隣 |
| 取引情報 | |
|---|---|
| 取引態様 | 媒介 |
| 客付 | 不可 |
この物件をチェックした人はこんな物件も見ています
- 医療機関跡地の貸店舗・事務所です!

北海道旭川市5条通(1〜17丁目)9丁目-1703-28
192.47m2(58.22坪)
280,000円(税込)
- 動物園通り沿いの事務所向け物件です。

北海道旭川市豊岡11条1-1-8
75.09m2(22.71坪)
88,000円(税込)
- 動物園通り沿いの事務所向け物件です。

北海道旭川市豊岡11条1-1-8
75.09m2(22.71坪)
77,000円(税込)
- 旭川駅徒歩圏内のクリニックビル。医療業歓迎!その他業種も相談可能です!

北海道旭川市1条通(1〜17丁目)8丁目-右1-7号
170.63m2(51.62坪)
236,071円(税込)
- 旭川駅徒歩圏内のクリニックビル。医療業歓迎!その他業種も相談可能です!

北海道旭川市1条通(1〜17丁目)8丁目-右1-7号
170.63m2(51.62坪)
312,240円(税込)
今日チェックした物件
お急ぎの方はお電話からお気軽にどうぞ!
0166-33-4338 営業時間 / 平日 9:30~18:30 定休日 / 不定休


0166-33-4338













0166-33-4338