情報更新日:2026年03月18日/広告有効期限:なし
表示閲覧回数(過去30日間):15
お急ぎの方はお電話からお気軽にどうぞ!
0166-33-4338 営業時間 / 平日 9:30~18:30 定休日 / 不定休
>物件詳細情報
| 基本情報 | |
|---|---|
| 物件番号 | 2026031801 |
| 店舗形態 | 店舗(飲食店可), 店舗 |
| オススメ業種 | |
| 物件名 | 3条プラザ(2) |
| 物件の状態 | 空き |
| 引越し時期 | 即 |
| 契約形態と期間 |
普通 |
| 所在地・交通 | |
|---|---|
| 所在地 | 北海道深川市三条9-8 |
| 交 通1 | 函館本線深川駅 徒歩4分 |
| 交 通2 | - |
| 賃料 | |
|---|---|
| 賃 料 | 44,000円(税込) |
| 敷 金 |
132,000円 |
| 共益費・管理費 | 5,000円(税込) |
| その他 | |
|---|---|
| 備考 | |
| 建物 | |
|---|---|
| 建物構造 | 木造 |
| 建物階建て |
地上2階 |
| 募集物件の階数 | 地上 1階 2号室 |
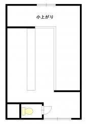
| 契約面積 | 31.12m2(9.41坪) |
| 駐車場 | |
|---|---|
| 状 況 | 近隣 |
| 取引情報 | |
|---|---|
| 取引態様 | 媒介 |
| 客付 | 可 |
この物件をチェックした人はこんな物件も見ています
- スケルトン状態。現状引き渡しです!

北海道深川市三条9-8
64.80m2(19.60坪)
88,000円(税込)
- 深川駅より4分、現状有姿の引き渡しです。

北海道深川市三条9-10
130.41m2(39.45坪)
88,000円(税込)
- 国道39号線沿い 倉庫物件です。

北海道旭川市永山3条21丁目-1-8
165.40m2(50.03坪)
165,000円(税込)
- 1階部分の貸店舗です。中心部にアクセスしやすい位置にあります。

北海道旭川市10条通(8〜17丁目)9丁目-975-82
63.40m2(19.18坪)
88,000円(税込)
- バス通りに面した中心部近くのテナント!

北海道旭川市6条通(1〜17丁目)7丁目-31-24
249.04m2(75.33坪)
110,000円(税込)
今日チェックした物件
お急ぎの方はお電話からお気軽にどうぞ!
0166-33-4338 営業時間 / 平日 9:30~18:30 定休日 / 不定休


0166-33-4338













0166-33-4338