情報更新日:2026年03月17日/広告有効期限:なし
表示閲覧回数(過去30日間):19
お急ぎの方はお電話からお気軽にどうぞ!
0166-33-4338 営業時間 / 平日 9:30~18:30 定休日 / 不定休
>物件詳細情報
| 基本情報 | |
|---|---|
| 物件番号 | 2026031201 |
| 店舗形態 | 一棟貸し, 店舗, 居抜店舗, 倉庫 |
| オススメ業種 | アミューズメント, ショールーム, 倉庫, 工場 |
| 物件名 | 深川市北光町1丁目 店舗 |
| 物件の状態 | 空き |
| 引越し時期 | 即 |
| 契約形態と期間 |
普通 |
| 所在地・交通 | |
|---|---|
| 所在地 | 北海道深川市北光町1-3-1 |
| 交 通1 | 函館本線深川駅 徒歩13分 |
| 交 通2 | - |
| 賃料 | |
|---|---|
| 賃 料 | 1,100,000円(税込) |
| 敷 金 |
6ヶ月 |
| その他 | |
|---|---|
| 備考 | 保証会社要加入/テナント保険要加入 |
| 建物 | |
|---|---|
| 建物構造 | 鉄骨造 |
| 建物階建て |
地上2階 |
| 施工年月 | 1990(平成2)年 12月 |
| 募集物件の階数 | 地上 1-2階 |
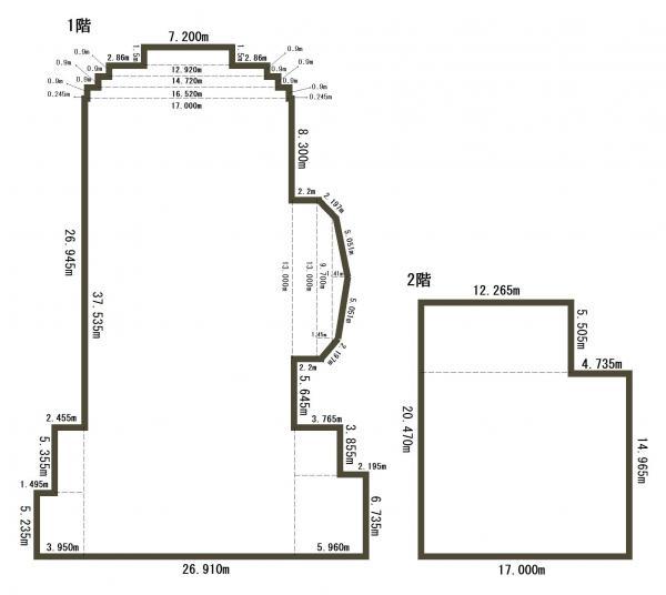
| 契約面積 | 1,150.93m2(348.16坪) |
| 設備 | |
|---|---|
| 水道 | 公営 |
| 下水道 | 公共下水 |
| ガス | LPG |
| エレベータ | 無 |
| エアコン | 有り/個別 |
| トイレ | 有/専用 |
| 給湯室 | 有/専用 |
| キッチン | 有/専用 |
| ネット環境 | 無 |
| 床仕様 | タイルカーペット |
| セキュリティ | 無 |
| 利用時間 | 24時間 |
| シャッター | 無 |
| 照明設備 | 有 |
| 内装業者指定 | 無 |
| 駐車場 | |
|---|---|
| 状 況 | 空有 |
| 取引情報 | |
|---|---|
| 取引態様 | 媒介 |
| 客付 | 不可 |
この物件をチェックした人はこんな物件も見ています
- 環状線沿いの路面店舗です。飲食店向けのレイアウトです。

北海道旭川市永山10条5-2-17
60.53m2(18.31坪)
66,000円(税込)
- 市内中心部商店街ビル1階路面店舗です。物販のみ可能!

北海道旭川市3条通(1〜17丁目)8丁目-438
20m2(6.05坪)
66,000円(税込)
- イオン旭川西店の近く☆道道に面した路面テナントです。 スナックの跡ですがトイレが汲み取りです。(水洗への変更不可) 倉庫としていかがでしょうか?

北海道旭川市緑町19-2148-91
39.16m2(11.85坪)
36,000円(税込)
- 旭川北IC近くの工場兼倉庫です。土間コンクリート、シャッターを改修済みです。

北海道旭川市東鷹栖東2条4-1911-1
374.26m2(113.21坪)
330,000円(税込)
- 飲食店跡の店舗。長年にわたり営業されていた店舗でした。新規事業の方等におススメです。

北海道旭川市2条通(1〜17丁目)5-
62.11m2(18.79坪)
53,000円(税込)
今日チェックした物件
お急ぎの方はお電話からお気軽にどうぞ!
0166-33-4338 営業時間 / 平日 9:30~18:30 定休日 / 不定休


0166-33-4338



















0166-33-4338