情報更新日:2026年02月04日/広告有効期限:なし
表示閲覧回数(過去30日間):13
お急ぎの方はお電話からお気軽にどうぞ!
0166-33-4338 営業時間 / 平日 9:30~18:30 定休日 / 不定休
>物件詳細情報
| 基本情報 | |
|---|---|
| 物件番号 | 2026020401 |
| 店舗形態 | 店舗, 事務所, ロードサイド, 路面店舗 |
| オススメ業種 | 物販関係, ショールーム, アミューズメント, 事務所 |
| 物件名 | 永山3-16貸店舗 |
| 物件の状態 | 空き |
| 引越し時期 | 即 |
| 契約形態と期間 | |
| 所在地・交通 | |
|---|---|
| 所在地 | 北海道旭川市永山3条16丁目-2-1 |
| 交 通1 | 道北バス永山2条16丁目 徒歩2分 |
| 交 通2 | - |
| 賃料 | |
|---|---|
| 賃 料 | 297,000円(税込) |
| 敷 金 |
1ヶ月 |
| その他月額費用 1 | 保証会社月額費用 440円(税込) |
| 礼 金 | 1ヶ月 |
| その他 | |
|---|---|
| 備考 | 原則保証会社利用の契約となります。CIZ保証:初回賃料等の77%、事務・振込手数料2,640円、月額費用440円、年間更新料5,000円) |
| 建物 | |
|---|---|
| 建物構造 | 鉄骨造 |
| 建物階建て |
地上1階 |
| 施工年月 | 1985(昭和60)年 01月 |
| 募集物件の階数 | 地上 1階 |
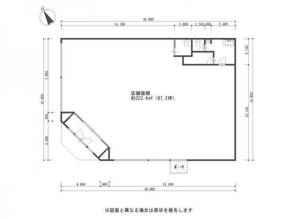
| 契約面積 | 222.15m2(67.20坪) |
| 専用使用面積 | 222.15m2(67.20坪) |
| 設備 | |
|---|---|
| 水道 | 公営 |
| 下水道 | 公共下水 |
| エレベータ | 無 |
| 利用時間 | 24時間 |
| シャッター | 無 |
| 照明設備 | 有 |
| 駐車場 | |
|---|---|
| 状 況 | 空有無料 |
| 空き台数 | 8台 |
| 取引情報 | |
|---|---|
| 取引態様 | 媒介 |
| 客付 | 不可 |
この物件をチェックした人はこんな物件も見ています
- 旭川北IC近くの工場兼倉庫です。土間コンクリート、シャッターを改修済みです。

北海道旭川市東鷹栖東2条4-1911-1
374.26m2(113.21坪)
330,000円(税込)
- 市内中心部商店街ビル1階路面店舗です。物販のみ可能!

北海道旭川市3条通(1〜17丁目)8丁目-438
20m2(6.05坪)
66,000円(税込)
- 買物公園と4条本通りに面したテナントビルです!諸条件相談可能です。

北海道旭川市4条通(1〜17丁目)8丁目-1705-7
198.11m2(59.93坪)
461,461円(税込)
- 南6条通の沿いの商業施設が並んだ複合店舗!1階はカラオケ店となっております。諸条件相談可能☆

北海道旭川市東光7条1-5-10
323.58m2(97.88坪)
330,000円(税込)
- 国道39号線沿いのテナントです。 店舗面積67.2坪、駐車場は8台分を隣のテナントと共同で使用できます。

北海道旭川市永山3条16丁目-2-1
222.15m2(67.20坪)
297,000円(税込)
今日チェックした物件
お急ぎの方はお電話からお気軽にどうぞ!
0166-33-4338 営業時間 / 平日 9:30~18:30 定休日 / 不定休


0166-33-4338












0166-33-4338