情報更新日:2025年11月21日/広告有効期限:なし
表示閲覧回数(過去30日間):34
お急ぎの方はお電話からお気軽にどうぞ!
0166-33-4338 営業時間 / 平日 9:30~18:30 定休日 / 不定休
>物件詳細情報
| 基本情報 | |
|---|---|
| 物件番号 | 2025112101 |
| 店舗形態 | 事務所 |
| オススメ業種 | |
| 物件名 | AIG旭川ビル(4F) |
| 物件の状態 | 空き |
| 引越し時期 | 即 |
| 契約形態と期間 |
普通 |
| 所在地・交通 | |
|---|---|
| 所在地 | 北海道旭川市4条通(1〜17丁目)12-左10 |
| 交 通1 | 函館本線旭川駅 徒歩14分 |
| 交 通2 | - |
| 賃料 | |
|---|---|
| 賃 料 | 76,720円(税込) |
| 敷 金 |
920,640円 |
| その他 | |
|---|---|
| 備考 | 駐車場空き状況は都度確認が必要です。 現状有姿の引き渡しとなります。 保証会社要加入/テナント保険要加入 |
| 建物 | |
|---|---|
| 建物構造 | 鉄筋コンクリート造 |
| 建物階建て |
地上5階 |
| 施工年月 | 1987(昭和62)年 11月 |
| 募集物件の階数 | 地上 4階 |
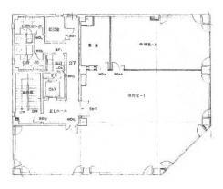
| 契約面積 | 36.23m2(10.96坪) |
| 設備 | |
|---|---|
| エレベータ | 有 |
| エアコン | 有り/セントラル(全館) |
| ネット環境 | 有 |
| セキュリティ | 機械警備 |
| 照明設備 | 有 |
| 駐車場 | |
|---|---|
| 状 況 | 空有 |
| 駐車料金 | 20,000円(税込) |
| 取引情報 | |
|---|---|
| 取引態様 | 媒介 |
| 客付 | 不可 |
この物件をチェックした人はこんな物件も見ています
- 旭川北IC近くの工場兼倉庫です。土間コンクリート、シャッターを改修済みです。

北海道旭川市東鷹栖東2条4-1911-1
374.26m2(113.21坪)
330,000円(税込)
- 市内中心部商店街ビル1階路面店舗です。物販のみ可能!

北海道旭川市3条通(1〜17丁目)8丁目-438
20m2(6.05坪)
66,000円(税込)
- 買物公園と4条本通りに面したテナントビルです!諸条件相談可能です。

北海道旭川市4条通(1〜17丁目)8丁目-1705-7
198.11m2(59.93坪)
461,461円(税込)
- 南6条通の沿いの商業施設が並んだ複合店舗!1階はカラオケ店となっております。諸条件相談可能☆

北海道旭川市東光7条1-5-10
323.58m2(97.88坪)
330,000円(税込)
- 環状線沿いの事務所向け物件です。

北海道旭川市豊岡13条7-1-6
156.20m2(47.25坪)
165,000円(税込)
今日チェックした物件
お急ぎの方はお電話からお気軽にどうぞ!
0166-33-4338 営業時間 / 平日 9:30~18:30 定休日 / 不定休


0166-33-4338













0166-33-4338