情報更新日:2025年05月22日/広告有効期限:なし
表示閲覧回数(過去30日間):18
お急ぎの方はお電話からお気軽にどうぞ!
0166-33-4338 営業時間 / 平日 9:30~18:30 定休日 / 不定休
>物件詳細情報
| 基本情報 | |
|---|---|
| 物件番号 | 00004414 |
| 店舗形態 | 事務所 |
| オススメ業種 | |
| 物件名 | 旭川緑橋通第一生命ビルディング(6階) |
| 物件の状態 | 空き |
| 引越し時期 | 相談 |
| 契約形態と期間 | |
| 所在地・交通 | |
|---|---|
| 所在地 | 北海道旭川市1条通(1〜17丁目)9丁目-50-3 |
| 交 通1 | 旭川電気軌道1条8丁目 徒歩2分 |
| 交 通2 | 函館本線旭川駅 徒歩4分 |
| 賃料 | |
|---|---|
| 賃 料 | 賃料未定 |
| 敷 金 |
敷金未定 |
| 礼 金 | 1ヶ月 |
| その他 | |
|---|---|
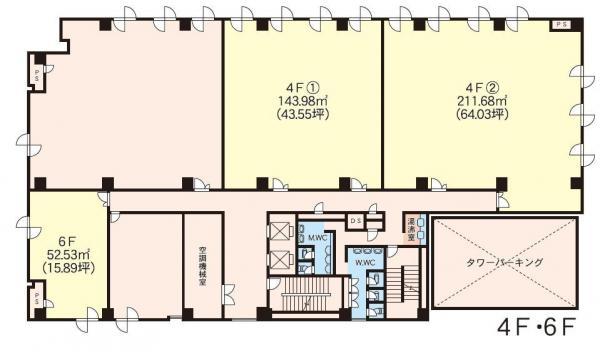
| 備考 | 空調:セントラル空調/天井高:2,500㎜/電気容量:照明200V(16VA/㎡)コンセント100V(10VA/㎡)/OA床:500㎜/駐車場:最大64台(タワーパーク)※空き台数要確認/エレベーター:2基/開館時間:平日8時~20時/火災保険要加入 |
| 建物 | |
|---|---|
| 建物構造 | 鉄骨鉄筋コンクリート造 |
| 建物階建て |
地上8階 地下1階 |
| 施工年月 | 1986(昭和61)年 06月 |
| 募集物件の階数 | 地上 6階 |
| 契約面積 | 52.53m2(15.89坪) |
| 設備 | |
|---|---|
| 水道 | 公営 |
| 下水道 | 公共下水 |
| エレベータ | 有 |
| エアコン | 有り/セントラル(全館) |
| トイレ | 有/共用 |
| 給湯室 | 有/共用 |
| ネット環境 | 有 |
| セキュリティ | 管理人常駐 |
| 利用時間 | 時間制限有 |
| シャッター | 無 |
| 照明設備 | 有 |
| 駐車場 | |
|---|---|
| 状 況 | 近隣 |
| 取引情報 | |
|---|---|
| 取引態様 | 媒介 |
| 客付 | 可 |
この物件をチェックした人はこんな物件も見ています
- 旭川北IC近くの工場兼倉庫です。土間コンクリート、シャッターを改修済みです。

北海道旭川市東鷹栖東2条4-1911-1
374.26m2(113.21坪)
330,000円(税込)
- 市内中心部商店街ビル1階路面店舗です。物販のみ可能!

北海道旭川市3条通(1〜17丁目)8丁目-438
20m2(6.05坪)
66,000円(税込)
- 買物公園と4条本通りに面したテナントビルです!諸条件相談可能です。

北海道旭川市4条通(1〜17丁目)8丁目-1705-7
198.11m2(59.93坪)
461,461円(税込)
- 南6条通の沿いの商業施設が並んだ複合店舗!1階はカラオケ店となっております。諸条件相談可能☆

北海道旭川市東光7条1-5-10
323.58m2(97.88坪)
330,000円(税込)
- 中心部、事務所物件!!大通りに近く利便性の良い立地です。

北海道旭川市7条通(18〜25丁目)18-3916-2
56.22m2(17.01坪)
77,000円(税込)
今日チェックした物件
- 4条通沿いの事務所向け物件。駐車場4台利用可能。
-

北海道旭川市4条通(18〜25丁目)22-
120.66m2(36.50坪)
165,000円(税込)
- バス通りに面した貸事務所。1階は書店となっております。
-

北海道旭川市豊岡1条4丁目-3-11
265m2(80.16坪)
143,000円(税込)
- 中心部にある事務所向け物件となります。駅に近い立地にあるので、交通の便が良いです♪♪
-

北海道旭川市1条通(1〜17丁目)10-2070-1
246.44m2(74.55坪)
110,000円(税込)
- 環状線沿いに面した立地の店舗です。
-

北海道旭川市東光5条6-3-3
129.60m2(39.20坪)
165,000円(税込)
- ショッピングセンター内にある1階テナントです。
-

北海道旭川市緑が丘3条3-1-4
70.24m2(21.25坪)
70,125円(税込)
お急ぎの方はお電話からお気軽にどうぞ!
0166-33-4338 営業時間 / 平日 9:30~18:30 定休日 / 不定休


0166-33-4338













0166-33-4338