情報更新日:2025年11月10日/広告有効期限:なし
表示閲覧回数(過去30日間):142
お急ぎの方はお電話からお気軽にどうぞ!
0166-33-4338 営業時間 / 平日 9:30~18:30 定休日 / 不定休
>物件詳細情報
| 基本情報 | |
|---|---|
| 物件番号 | 2024112302 |
| 店舗形態 | 店舗, ロードサイド, 事務所, 一棟貸し |
| オススメ業種 | 物販関係, 事務所, サービス業, ショールーム |
| 物件名 | 忠和5-6 貸店舗事務所 |
| 物件の状態 | 空き |
| 引越し時期 | 相談 |
| 契約形態と期間 |
普通 |
| 所在地・交通 | |
|---|---|
| 所在地 | 北海道旭川市忠和5条6丁目-1-12 |
| 交 通1 | 旭川電気軌道忠和5条6丁目 徒歩1分 |
| 交 通2 | - |
| 賃料 | |
|---|---|
| 賃 料 | 385,000円(税込) |
| 敷 金 |
3ヶ月 |
| その他 | |
|---|---|
| 備考 | |
| 建物 | |
|---|---|
| 建物構造 | 木造 |
| 建物階建て |
地上1階 |
| 募集物件の階数 | 地上 1階 |
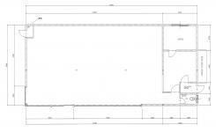
| 契約面積 | 153m2(46.28坪) |
| 敷地面積 | 695.45m2(210.37坪) |
| 用途地域 | 準住居 |
| 設備 | |
|---|---|
| 水道 | 公営 |
| 下水道 | 公共下水 |
| エレベータ | 無 |
| トイレ | 有/専用 |
| 利用時間 | 24時間 |
| 駐車場 | |
|---|---|
| 状 況 | 空有 |
| 空き台数 | 15台 |
| 取引情報 | |
|---|---|
| 取引態様 | 媒介 |
| 客付 | 可 |
この物件をチェックした人はこんな物件も見ています
- 環状線沿いの路面店舗です。飲食店向けのレイアウトです。

北海道旭川市永山10条5-2-17
60.53m2(18.31坪)
66,000円(税込)
- 南6条通の沿いの商業施設が並んだ複合店舗!1階はカラオケ店となっております。諸条件相談可能☆

北海道旭川市東光7条1-5-10
323.58m2(97.88坪)
330,000円(税込)
- 居酒屋跡の物件です。電気・ガス・水道料金は定額で月額20,000円となっております。(使用料によって変動する場合があります。)

北海道旭川市6条通(1〜17丁目)17-82-16
38.84m2(11.75坪)
44,000円(税込)
- ボックス席スペースもあるスナック跡の1階店舗です。バス停近くの立地にあります!

北海道旭川市豊岡5条2-1-5
51.03m2(15.44坪)
110,000円(税込)
- 中心部、角地物件!!元フラワーショップでした。

北海道旭川市3条通(1〜17丁目)4-399-1
66.11m2(20.00坪)
55,000円(税込)
今日チェックした物件
お急ぎの方はお電話からお気軽にどうぞ!
0166-33-4338 営業時間 / 平日 9:30~18:30 定休日 / 不定休


0166-33-4338



















0166-33-4338