情報更新日:2025年09月18日/広告有効期限:なし
表示閲覧回数(過去30日間):42
お急ぎの方はお電話からお気軽にどうぞ!
0166-33-4338 営業時間 / 平日 9:30~18:30 定休日 / 不定休
>物件詳細情報
| 基本情報 | |
|---|---|
| 物件番号 | 00002020 |
| 店舗形態 | 事務所 |
| オススメ業種 | |
| 物件名 | 旭川二条通ビル 203号 |
| 物件の状態 | 入居中 |
| 引越し時期 | 2025(令和7)年02月上旬 |
| 契約形態と期間 |
普通 |
| 所在地・交通 | |
|---|---|
| 所在地 | 北海道旭川市2条通(1〜17丁目)8丁目-144-2 |
| 交 通1 | 函館本線旭川駅 徒歩6分 |
| 交 通2 | 旭川電気軌道1条8丁目 徒歩2分 |
| 賃料 | |
|---|---|
| 賃 料 | 72,248円(税込) |
| 敷 金 |
4ヶ月 |
| その他 | |
|---|---|
| 備考 | ガスを利用したい場合は別途引込必要。ビル側より専有部電気代の請求有り。小メーター使用量×単価×基本料(面積按分)。水道・ガス料金も毎月発生します。 ◆初回館銘板作成費用:15,000円(税別)エントランス・各階EVホール・貸室前の3ケ所 ◆袖看板使用料:月額5,000円(税別)任意です。 |
| 建物 | |
|---|---|
| 建物構造 | 鉄骨鉄筋コンクリート造 |
| 建物階建て |
地上8階 |
| 施工年月 | 1991(平成3)年 05月 |
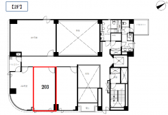
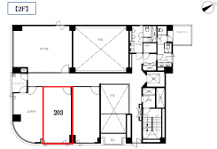
| 募集物件の階数 | 地上 2階 203号室 |
| 契約面積 | 27.14m2(8.21坪) |
| 延床面積 | 2,138.19m2(646.80坪) |
| 用途地域 | 商業地域 |
| 設備 | |
|---|---|
| 水道 | 公営 |
| 下水道 | 公共下水 |
| エレベータ | 有 |
| エアコン | 有 |
| トイレ | 有/共用 |
| 給湯室 | 有/共用 |
| ネット環境 | 無 |
| セキュリティ | 機械警備 |
| 利用時間 | 時間制限有 |
| シャッター | 無 |
| 照明設備 | 有 |
| 内装業者指定 | 有 |
| 駐車場 | |
|---|---|
| 状 況 | 近隣 |
| 取引情報 | |
|---|---|
| 取引態様 | 媒介 |
| 客付 | 可 |
この物件をチェックした人はこんな物件も見ています
- 旭川北IC近くの工場兼倉庫です。土間コンクリート、シャッターを改修済みです。

北海道旭川市東鷹栖東2条4-1911-1
374.26m2(113.21坪)
330,000円(税込)
- 市内中心部商店街ビル1階路面店舗です。物販のみ可能!

北海道旭川市3条通(1〜17丁目)8丁目-438
20m2(6.05坪)
66,000円(税込)
- 南6条通の沿いの商業施設が並んだ複合店舗!1階はカラオケ店となっております。諸条件相談可能☆

北海道旭川市東光7条1-5-10
323.58m2(97.88坪)
330,000円(税込)
- 買物公園と4条本通りに面したテナントビルです!諸条件相談可能です。

北海道旭川市4条通(1〜17丁目)8丁目-1705-7
198.11m2(59.93坪)
461,461円(税込)
- 中心部、事務所物件!!大通りに近く利便性の良い立地です。

北海道旭川市7条通(18〜25丁目)18-3916-2
56.22m2(17.01坪)
77,000円(税込)
今日チェックした物件
- 旭川駅、市役所まで徒歩圏内の立地です。大幅改修済みの為、快適にご利用頂けます。
-

北海道旭川市6条通(1〜17丁目)8丁目-36-25
26.53m2(8.03坪)
62,700円(税込)
- 旭川駅徒歩圏内のビルになります。事務所向け物件。
-

北海道旭川市宮下通(1〜17丁目)9丁目-780-1
36m2(10.89坪)
59,895円(税込)
- バー・ラウンジ・スナック居抜物件!!美装済みのテナントです。24時間管理人常駐で即時対応いたします。
-

北海道旭川市3条通(1〜17丁目)7丁目-左1号
41.32m2(12.50坪)
110,000円(税込)
- 居酒屋店の居抜なので即開業可能♪カウンター、小上がり両方掘りこたつ(^^)
-

北海道旭川市3条通(1〜17丁目)5丁目-1353-1
45m2(13.61坪)
53,460円(税込)
- 旭川駅目の前のテナントです。事務所用途向けです。
-

北海道旭川市宮下通(1〜17丁目)7丁目-3897
42.27m2(12.79坪)
84,414円(税込)
お急ぎの方はお電話からお気軽にどうぞ!
0166-33-4338 営業時間 / 平日 9:30~18:30 定休日 / 不定休


0166-33-4338














0166-33-4338