情報更新日:2024年02月18日/広告有効期限:なし
表示閲覧回数(過去30日間):40
お急ぎの方はお電話からお気軽にどうぞ!
0166-33-4338 営業時間 / 平日 9:30~18:30 定休日 / 不定休
>物件詳細情報
| 基本情報 | |
|---|---|
| 物件番号 | 00003000 |
| 店舗形態 | 店舗(飲食店可), 路面店舗 |
| オススメ業種 | 軽飲食 |
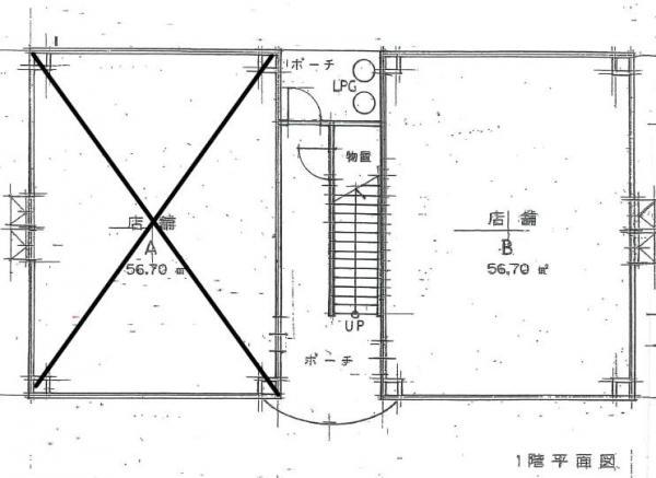
| 物件名 | ミツイプラザ(2階D) |
| 物件の状態 | 建設中 |
| 引越し時期 | 2024(令和6)年03月上旬 |
| 契約形態と期間 | |
| 所在地・交通 | |
|---|---|
| 所在地 | 北海道旭川市豊岡5条2- |
| 交 通1 | 旭川電気軌道 徒歩2分 |
| 交 通2 | - |
| 賃料 | |
|---|---|
| 賃 料 | 132,000円(税込) |
| 敷 金 |
3ヶ月 |
| その他 | |
|---|---|
| 備考 | ・重飲食NG ・共用部の電気料金は按分計算して請求します。 ・店舗前の駐車場は来客用の為、借主様は建物裏の駐車場をご利用頂きます。(1台に付き5,000円+税) ・内装は貸主と要相談になります。 ・テナント保険要加入 ・審査内容によっては保証会社をご利用頂く場合があります。 |
| 建物 | |
|---|---|
| 建物構造 | 鉄筋コンクリート造 |
| 建物階建て |
地上2階 |
| 施工年月 | 2023(令和5)年 11月 |
| 募集物件の階数 | 地上 2階 D号室 |
| 契約面積 | 56.70m2(17.15坪) |
| 用途地域 | 近商地域 |
| 設備 | |
|---|---|
| 水道 | 公営 |
| 下水道 | 公共下水 |
| ガス | LPG |
| エレベータ | 無 |
| トイレ | 有/専用 |
| 給湯室 | 無 |
| ネット環境 | 無 |
| セキュリティ | 無 |
| 利用時間 | 24時間 |
| シャッター | 無 |
| 照明設備 | 有 |
| 内装業者指定 | 有 |
| 駐車場 | |
|---|---|
| 状 況 | 空有 |
| 取引情報 | |
|---|---|
| 取引態様 | 媒介 |
| 客付 | 不可 |
この物件をチェックした人はこんな物件も見ています
- 喫茶店跡のテナントです。駐車場1台5,000円で利用相談可能です。

北海道旭川市東2条4丁目-2-7
45.27m2(13.69坪)
33,000円(税込)
- イオン旭川西店の近く☆道道に面した路面テナントです。 スナックの跡ですがトイレが汲み取りです。(水洗への変更不可) 倉庫としていかがでしょうか?

北海道旭川市緑町19-2148-91
39.16m2(11.85坪)
36,000円(税込)
- 住宅街に位置する貸店舗です。バス通り沿いに面しております。

北海道旭川市東光16条6-3-18
36.93m2(11.17坪)
66,000円(税込)
- 環状線沿いの建物のテナントです。無人販売店舗。セルフサービス向けの店舗です。

北海道旭川市豊岡9条7-2-1
64.92m2(19.64坪)
88,000円(税込)
- 買物公園通りに面したテナントビル。美容室、サロン向けの店舗です。

北海道旭川市3条通(1〜17丁目)8丁目-1705-29
104.07m2(31.48坪)
165,000円(税込)
今日チェックした物件
- 他テナントと併設している物件です。元飲食店居抜き物件。
-

北海道旭川市4条通(1〜17丁目)14-911-1
52.20m2(15.79坪)
143,000円(税込)
- 買物公園沿いの事務所物件です!! 諸条件相談可能です!
-

北海道旭川市7条通(1〜17丁目)8丁目-38-50
109.12m2(33.01坪)
181,500円(税込)
- スナック跡の店舗です。デリバリーやテイクアウト専門店等の新規事業にいかがでしょうか?
-

北海道旭川市末広3条3丁目-5-15
58.72m2(17.76坪)
77,000円(税込)
- 緑橋通りに面したテナントビルです。旭川駅まで徒歩約12分。
-

北海道旭川市5条通(1〜17丁目)9丁目-1163-2
92.96m2(28.12坪)
賃料未定
- オフィスビル街の一角です。共用部、内装は綺麗に仕上がっております。
-

北海道旭川市4条通(1〜17丁目)8丁目-1703-12
70.69m2(21.38坪)
賃料未定
お急ぎの方はお電話からお気軽にどうぞ!
0166-33-4338 営業時間 / 平日 9:30~18:30 定休日 / 不定休


0166-33-4338


















0166-33-4338