情報更新日:2023年12月08日/広告有効期限:なし
表示閲覧回数(過去30日間):26
お急ぎの方はお電話からお気軽にどうぞ!
0166-33-4338 営業時間 / 平日 9:30~18:30 定休日 / 不定休
>物件詳細情報
| 基本情報 | |
|---|---|
| 物件番号 | 3643 |
| 店舗形態 | 事務所 |
| オススメ業種 | 事務所 |
| 物件名 | グラン旭川(304号) |
| 物件の状態 | 空き |
| 引越し時期 | 相談 |
| 契約形態と期間 |
普通契約期間:2年間 |
| 所在地・交通 | |
|---|---|
| 所在地 | 北海道旭川市4条通(1〜17丁目)7丁目-793-1 |
| 交 通1 | 旭川電気軌道4条7丁目 徒歩1分 |
| 交 通2 | 函館本線旭川駅 徒歩10分 |
| 賃料 | |
|---|---|
| 賃 料 | 334,565円(税込) |
| 敷 金 |
6ヶ月 |
| その他 | |
|---|---|
| 備考 | ・機械式駐車場:1台に付き15,000円(税別)※台数制限有り/敷金1ヶ月 ・エントランス開錠時間 平日8:00~19:00(土日祝、年末年始は閉扉) ・通用口開錠時間 平日7:45~20:00(日祝、年末年始は閉扉) ・通用口はセキュリティカードで開錠 ・館内規則あり ・テナント保険要加入 ・家賃保証会社利用時:敷金2ヶ月 |
| 建物 | |
|---|---|
| 建物構造 | 鉄筋コンクリート造 |
| 建物階建て |
地上9階 地下1階 |
| 施工年月 | 1981(昭和56)年 12月 |
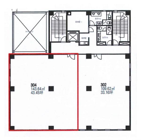
| 募集物件の階数 | 地上 3階 304号室 |
| 契約面積 | 143.64m2(43.45坪) |
| 設備 | |
|---|---|
| 水道 | 公営 |
| 下水道 | 公共下水 |
| ガス | 都市ガス |
| エレベータ | 有 |
| エアコン | 有り/セントラル(全館) |
| トイレ | 有/共用 |
| 給湯室 | 有/共用 |
| セキュリティ | 機械警備 |
| 利用時間 | 時間制限有 |
| シャッター | 無 |
| 照明設備 | 有 |
| 駐車場 | |
|---|---|
| 状 況 | 空有 |
| 駐車料金 | 16,500円(税込) |
| 取引情報 | |
|---|---|
| 取引態様 | 媒介 |
| 客付 | 不可 |
この物件をチェックした人はこんな物件も見ています
- 旭川北IC近くの工場兼倉庫です。土間コンクリート、シャッターを改修済みです。

北海道旭川市東鷹栖東2条4-1911-1
374.26m2(113.21坪)
330,000円(税込)
- 市内中心部商店街ビル1階路面店舗です。物販のみ可能!

北海道旭川市3条通(1〜17丁目)8丁目-438
20m2(6.05坪)
66,000円(税込)
- 買物公園と4条本通りに面したテナントビルです!諸条件相談可能です。

北海道旭川市4条通(1〜17丁目)8丁目-1705-7
198.11m2(59.93坪)
461,461円(税込)
- 南6条通の沿いの商業施設が並んだ複合店舗!1階はカラオケ店となっております。諸条件相談可能☆

北海道旭川市東光7条1-5-10
323.58m2(97.88坪)
330,000円(税込)
- 中心部、事務所物件!!大通りに近く利便性の良い立地です。

北海道旭川市7条通(18〜25丁目)18-3916-2
56.22m2(17.01坪)
77,000円(税込)
今日チェックした物件
- 中心部に位置するオフィスビル☆彡新耐震基準に備えた補強工事をしているので安心♪♪
-

北海道旭川市2条通(1〜17丁目)9丁目-228番地の2
67.70m2(20.48坪)
135,168円(税込)
- 他テナントと併設している物件です。元飲食店居抜き物件。
-

北海道旭川市4条通(1〜17丁目)14-911-1
52.20m2(15.79坪)
143,000円(税込)
- あたご動物園通り沿い1階テナント物件。
-

北海道旭川市豊岡5条4丁目-2-20
78.39m2(23.71坪)
88,000円(税込)
- 3条通中心部の地下店舗。内装はスケルトンです。
-

北海道旭川市3条通(1〜17丁目)7-423-3
175.20m2(53.00坪)
352,000円(税込)
- 中心部☆彡 居酒屋跡のテナントです。賃料に水道料金が含まれております☆
-

北海道旭川市4条通(1〜17丁目)5-
53.57m2(16.20坪)
55,000円(税込)
お急ぎの方はお電話からお気軽にどうぞ!
0166-33-4338 営業時間 / 平日 9:30~18:30 定休日 / 不定休


0166-33-4338













0166-33-4338