情報更新日:2023年11月21日/広告有効期限:なし
表示閲覧回数(過去30日間):34
お急ぎの方はお電話からお気軽にどうぞ!
0166-33-4338 営業時間 / 平日 9:30~18:30 定休日 / 不定休
>物件詳細情報
| 基本情報 | |
|---|---|
| 物件番号 | 00001213 |
| 店舗形態 | 事務所 |
| オススメ業種 | 事務所 |
| 物件名 | 旭川駅前ビル |
| 物件の状態 | 空き |
| 引越し時期 | 即 |
| 契約形態と期間 | |
| 所在地・交通 | |
|---|---|
| 所在地 | 北海道旭川市宮下通(1〜17丁目)7丁目-3897 |
| 交 通1 | 函館本線旭川駅 徒歩2分 |
| 交 通2 | 旭川電気軌道旭川駅前バスタッチ 徒歩2分 |
| 賃料 | |
|---|---|
| 賃 料 | 271,062円(税込) |
| 敷 金 |
2ヶ月 |
| その他 | |
|---|---|
| 備考 | 利用時間:平日8:00~18:00。土曜8:00~13:00 ※日・祝日は集中冷暖房費は別途かかります。 |
| 建物 | |
|---|---|
| 建物構造 | 鉄筋コンクリート造 |
| 建物階建て |
地上11階 地下1階 |
| 施工年月 | 1971(昭和46)年 09月 |
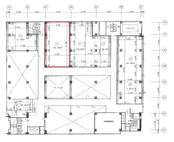
| 募集物件の階数 | 地上 4階 |
| 契約面積 | 135.76m2(41.07坪) |
| 設備 | |
|---|---|
| 水道 | 公営 |
| 下水道 | 公共下水 |
| エレベータ | 有/3基以上 |
| エアコン | 有り/セントラル(全館) |
| トイレ | 有/共用 |
| 利用時間 | 時間制限有 |
| 照明設備 | 有 |
| 駐車場 | |
|---|---|
| 状 況 | 無し |
| 取引情報 | |
|---|---|
| 取引態様 | 媒介 |
| 客付 | 不可 |
この物件をチェックした人はこんな物件も見ています
- 旭川北IC近くの工場兼倉庫です。土間コンクリート、シャッターを改修済みです。

北海道旭川市東鷹栖東2条4-1911-1
374.26m2(113.21坪)
330,000円(税込)
- 市内中心部商店街ビル1階路面店舗です。物販のみ可能!

北海道旭川市3条通(1〜17丁目)8丁目-438
20m2(6.05坪)
66,000円(税込)
- 買物公園と4条本通りに面したテナントビルです!諸条件相談可能です。

北海道旭川市4条通(1〜17丁目)8丁目-1705-7
198.11m2(59.93坪)
461,461円(税込)
- 南6条通の沿いの商業施設が並んだ複合店舗!1階はカラオケ店となっております。諸条件相談可能☆

北海道旭川市東光7条1-5-10
323.58m2(97.88坪)
330,000円(税込)
- 中心部、事務所物件!!大通りに近く利便性の良い立地です。

北海道旭川市7条通(18〜25丁目)18-3916-2
56.22m2(17.01坪)
77,000円(税込)
今日チェックした物件
- 中心部に位置するオフィスビル☆彡新耐震基準に備えた補強工事をしているので安心♪♪
-

北海道旭川市2条通(1〜17丁目)9丁目-228番地の2
67.70m2(20.48坪)
135,168円(税込)
- 他テナントと併設している物件です。元飲食店居抜き物件。
-

北海道旭川市4条通(1〜17丁目)14-911-1
52.20m2(15.79坪)
143,000円(税込)
- あたご動物園通り沿い1階テナント物件。
-

北海道旭川市豊岡5条4丁目-2-20
78.39m2(23.71坪)
88,000円(税込)
- 3条通中心部の地下店舗。内装はスケルトンです。
-

北海道旭川市3条通(1〜17丁目)7-423-3
175.20m2(53.00坪)
352,000円(税込)
- 中心部☆彡 居酒屋跡のテナントです。賃料に水道料金が含まれております☆
-

北海道旭川市4条通(1〜17丁目)5-
53.57m2(16.20坪)
55,000円(税込)
お急ぎの方はお電話からお気軽にどうぞ!
0166-33-4338 営業時間 / 平日 9:30~18:30 定休日 / 不定休


0166-33-4338













0166-33-4338