情報更新日:2025年06月06日/広告有効期限:なし
表示閲覧回数(過去30日間):25
お急ぎの方はお電話からお気軽にどうぞ!
0166-33-4338 営業時間 / 平日 9:30~18:30 定休日 / 不定休
>物件詳細情報
| 基本情報 | |
|---|---|
| 物件番号 | 2802 |
| 店舗形態 | 事務所 |
| オススメ業種 | |
| 物件名 | タナカ29ビル 1棟 |
| 物件の状態 | 空き |
| 引越し時期 | 即 |
| 契約形態と期間 |
普通 |
| 所在地・交通 | |
|---|---|
| 所在地 | 北海道旭川市2条通(1〜17丁目)9丁目-147-1 |
| 交 通1 | 旭川電気軌道1条9丁目 徒歩2分 |
| 交 通2 | - |
| 賃料 | |
|---|---|
| 賃 料 | 賃料未定 |
| 敷 金 |
敷金未定 |
| その他 | |
|---|---|
| 備考 | |
| 建物 | |
|---|---|
| 建物構造 | 鉄骨鉄筋コンクリート造 |
| 建物階建て |
地上6階 地下1階 |
| 施工年月 | 1952(昭和27)年 |
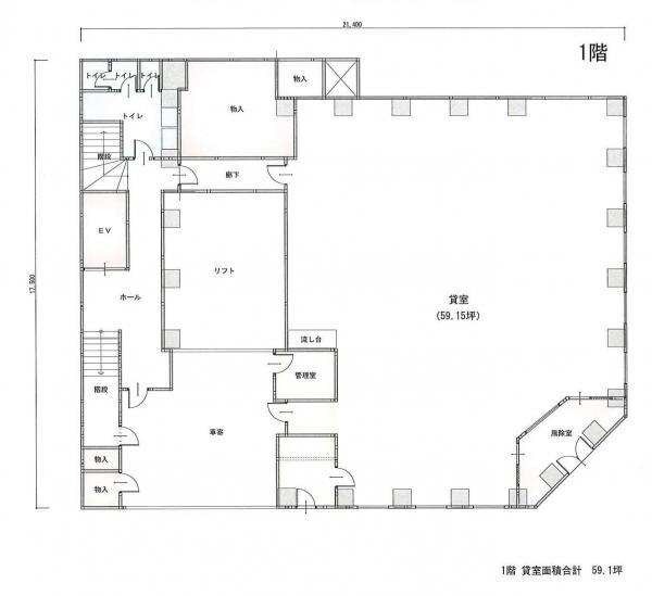
| 募集物件の階数 | 地上 1階 |
| 契約面積 | 1,388.43m2(420.00坪) |
| 基準階面積 | 235.24m2(71.16坪) |
| 延床面積 | 2,458.76m2(743.77坪) |
| 敷地面積 | 380.57m2(115.12坪) |
| 用途地域 | 商業地域 |
| 設備 | |
|---|---|
| 水道 | 公営 |
| 下水道 | 公共下水 |
| エレベータ | 有 |
| エアコン | 有り/個別 |
| トイレ | 有/専用 |
| 給湯室 | 有/専用 |
| キッチン | 有/専用 |
| 照明設備 | 有 |
| 駐車場 | |
|---|---|
| 状 況 | 近隣 |
| 取引情報 | |
|---|---|
| 取引態様 | 媒介 |
| 客付 | 不可 |
この物件をチェックした人はこんな物件も見ています
- 南6条通の沿いの商業施設が並んだ複合店舗!1階はカラオケ店となっております。諸条件相談可能☆

北海道旭川市東光7条1-5-10
323.58m2(97.88坪)
330,000円(税込)
- 旭川北IC近くの工場兼倉庫です。土間コンクリート、シャッターを改修済みです。

北海道旭川市東鷹栖東2条4-1911-1
374.26m2(113.21坪)
330,000円(税込)
- 買物公園通りに面したテナントビル。美容室、サロン向けの店舗です。

北海道旭川市3条通(1〜17丁目)8丁目-1705-29
104.07m2(31.48坪)
165,000円(税込)
- 国道39号線沿い。4条通に面しているのでアクセス良好!駐車場はピロティ部分となります♪物置スペースも6坪ほどありテナントスペース部分と合わせると60坪と広々と利用できます!

北海道旭川市4条通(1〜17丁目)17-1692-2
180.90m2(54.72坪)
247,500円(税込)
- 国道39号線沿いのテナントです。 店舗面積67.2坪、駐車場は8台分を隣のテナントと共同で使用できます。

北海道旭川市永山3条16丁目-2-1
222.15m2(67.20坪)
297,000円(税込)
今日チェックした物件
お急ぎの方はお電話からお気軽にどうぞ!
0166-33-4338 営業時間 / 平日 9:30~18:30 定休日 / 不定休


0166-33-4338



















0166-33-4338