情報更新日:2025年12月21日/広告有効期限:なし
表示閲覧回数(過去30日間):57
お急ぎの方はお電話からお気軽にどうぞ!
0166-33-4338 営業時間 / 平日 9:30~18:30 定休日 / 不定休
>物件詳細情報
| 基本情報 | |
|---|---|
| 物件番号 | 00006332 |
| 店舗形態 | 事務所, 店舗, 店舗(飲食店可), ロードサイド |
| オススメ業種 | 物販関係, 事務所, サービス業, 重飲食 |
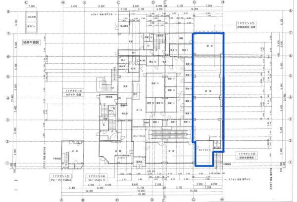
| 物件名 | 丸越ビル 1階テナント① |
| 物件の状態 | 空き |
| 引越し時期 | 相談 |
| 契約形態と期間 | |
| 所在地・交通 | |
|---|---|
| 所在地 | 北海道深川市三条8-8番24 |
| 交 通1 | 函館本線深川駅 徒歩3分 |
| 交 通2 | - |
| 賃料 | |
|---|---|
| 賃 料 | 220,000円(税込) |
| 敷 金 |
600,000円 |
| その他 | |
|---|---|
| 備考 | ・現状有姿で引き渡しとなります。 ・設備品等は設備対象外となります。 ・テナント保険要加入 ・審査内容によっては保証会社をご利用頂く場合がございます。 ・駐車場は1台7,000円(税別)で相談可能 ・外灯料:1,500円(税込・月額) ・冬期間除排雪費用(12月~3月):20,000円(税別) |
| 建物 | |
|---|---|
| 建物構造 | 鉄骨造 |
| 建物階建て |
地上3階 |
| 施工年月 | 1979(昭和54)年 06月 |
| 募集物件の階数 | 地上 1階 |
| 契約面積 | 194.40m2(58.81坪) |
| 設備 | |
|---|---|
| 水道 | 公営 |
| 下水道 | 公共下水 |
| ガス | LPG |
| エレベータ | 無 |
| エアコン | 有 |
| トイレ | 有/共用 |
| キッチン | 無 |
| ネット環境 | 有 |
| セキュリティ | 無 |
| 利用時間 | 24時間 |
| シャッター | 無 |
| 照明設備 | 有 |
| 内装業者指定 | 無 |
| 駐車場 | |
|---|---|
| 状 況 | 空有 |
| 取引情報 | |
|---|---|
| 取引態様 | 媒介 |
| 客付 | 不可 |
この物件をチェックした人はこんな物件も見ています
- 環状線沿いの路面店舗です。飲食店向けのレイアウトです。

北海道旭川市永山10条5-2-17
60.53m2(18.31坪)
66,000円(税込)
- 居酒屋跡の物件です。電気・ガス・水道料金は定額で月額20,000円となっております。(使用料によって変動する場合があります。)

北海道旭川市6条通(1〜17丁目)17-82-16
38.84m2(11.75坪)
44,000円(税込)
- 南6条通の沿いの商業施設が並んだ複合店舗!1階はカラオケ店となっております。諸条件相談可能☆

北海道旭川市東光7条1-5-10
323.58m2(97.88坪)
330,000円(税込)
- 旭川北IC近くの工場兼倉庫です。土間コンクリート、シャッターを改修済みです。

北海道旭川市東鷹栖東2条4-1911-1
374.26m2(113.21坪)
330,000円(税込)
- イオン旭川西店の近く☆道道に面した路面テナントです。 スナックの跡ですがトイレが汲み取りです。(水洗への変更不可) 倉庫としていかがでしょうか?

北海道旭川市緑町19-2148-91
39.16m2(11.85坪)
36,000円(税込)
今日チェックした物件
お急ぎの方はお電話からお気軽にどうぞ!
0166-33-4338 営業時間 / 平日 9:30~18:30 定休日 / 不定休


0166-33-4338



















0166-33-4338