情報更新日:2026年01月07日/広告有効期限:なし
表示閲覧回数(過去30日間):52
お急ぎの方はお電話からお気軽にどうぞ!
0166-33-4338 営業時間 / 平日 9:30~18:30 定休日 / 不定休
>物件詳細情報
| 基本情報 | |
|---|---|
| 物件番号 | 00002385 |
| 店舗形態 | 事務所, SOHOオフィス, 路面店舗, ロードサイド |
| オススメ業種 | 物販関係, サービス業, ショールーム |
| 物件名 | 永山2-16 貸店舗・事務所 |
| 物件の状態 | 空き |
| 引越し時期 | 相談 |
| 契約形態と期間 |
定期契約期間:10年間再契約:不可 |
| 所在地・交通 | |
|---|---|
| 所在地 | 北海道旭川市永山2条16-6-12 |
| 交 通1 | 道北バス 徒歩2分 |
| 交 通2 | - |
| 賃料 | |
|---|---|
| 賃 料 | 821,700円(税込) |
| 敷 金 |
6ヶ月 |
| その他 | |
|---|---|
| 備考 | ・定期借家契約となります。(期間:要相談、再契約:要相談) ・現状有姿で引き渡し(設備のメンテナンス費は借主実費負担) ・キュービクル有 ・テナント保険要加入 |
| 建物 | |
|---|---|
| 建物構造 | 鉄骨造 |
| 建物階建て |
地上1階 |
| 施工年月 | 1987(昭和62)年 03月 |
| 募集物件の階数 | 地上 1階 |
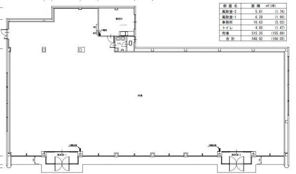
| 契約面積 | 548.92m2(166.05坪) |
| 設備 | |
|---|---|
| 水道 | 公営 |
| 下水道 | 公共下水 |
| エレベータ | 無 |
| エアコン | 有 |
| トイレ | 有/専用 |
| 給湯室 | 有/専用 |
| ネット環境 | 無 |
| セキュリティ | 無 |
| 利用時間 | 24時間 |
| シャッター | 無 |
| 照明設備 | 有 |
| 内装業者指定 | 無 |
| 駐車場 | |
|---|---|
| 状 況 | 空有 |
| 空き台数 | 19台 |
| 取引情報 | |
|---|---|
| 取引態様 | 媒介 |
| 客付 | 不可 |
この物件をチェックした人はこんな物件も見ています
- 旭川北IC近くの工場兼倉庫です。土間コンクリート、シャッターを改修済みです。

北海道旭川市東鷹栖東2条4-1911-1
374.26m2(113.21坪)
330,000円(税込)
- 南6条通の沿いの商業施設が並んだ複合店舗!1階はカラオケ店となっております。諸条件相談可能☆

北海道旭川市東光7条1-5-10
323.58m2(97.88坪)
330,000円(税込)
- 環状線沿いの建物のテナントです。無人販売店舗。セルフサービス向けの店舗です。

北海道旭川市豊岡9条7-2-1
64.92m2(19.64坪)
88,000円(税込)
- 4条通り沿いの1階テナントです。 建物の前面に2台分駐車可能☆

北海道旭川市4条通(18〜25丁目)21丁目-左2
33.63m2(10.17坪)
77,000円(税込)
- 買物公園と4条本通りに面したテナントビルです!諸条件相談可能です。

北海道旭川市4条通(1〜17丁目)8丁目-1705-7
198.11m2(59.93坪)
461,461円(税込)
今日チェックした物件
お急ぎの方はお電話からお気軽にどうぞ!
0166-33-4338 営業時間 / 平日 9:30~18:30 定休日 / 不定休


0166-33-4338
















0166-33-4338