情報更新日:2025年05月20日/広告有効期限:なし
表示閲覧回数(過去30日間):73
お急ぎの方はお電話からお気軽にどうぞ!
0166-33-4338 営業時間 / 平日 9:30~18:30 定休日 / 不定休
>物件詳細情報
| 基本情報 | |
|---|---|
| 物件番号 | 00002368 |
| 店舗形態 | 事務所, 路面店舗 |
| オススメ業種 | 美容関係, 物販関係, 事務所, 軽飲食 |
| 物件名 | 豊岡9-7 テナントB |
| 物件の状態 | 空き |
| 引越し時期 | 即 |
| 契約形態と期間 | |
| 所在地・交通 | |
|---|---|
| 所在地 | 北海道旭川市豊岡9条7-2-1 |
| 交 通1 | 旭川電気軌道 徒歩4分 |
| 交 通2 | - |
| 賃料 | |
|---|---|
| 賃 料 | 88,000円(税込) |
| 敷 金 |
3ヶ月 |
| その他 | |
|---|---|
| 備考 | ・現状有姿で引き渡しとなります。 ・テナント保険要加入 ・駐車場無し ・審査内容によっては家賃保証会社をご利用頂く場合がございます。 |
| 建物 | |
|---|---|
| 建物構造 | 鉄骨造 |
| 建物階建て |
地上2階 |
| 施工年月 | 1979(昭和54)年 05月 |
| 募集物件の階数 | 地上 1階 B号室 |
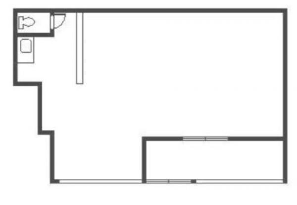
| 契約面積 | 64.92m2(19.64坪) |
| 用途地域 | 準住居 |
| 設備 | |
|---|---|
| 水道 | 公営 |
| 下水道 | 公共下水 |
| エレベータ | 無 |
| エアコン | 無 |
| トイレ | 有/専用 |
| 給湯室 | 無 |
| キッチン | 有/専用 |
| ネット環境 | 無 |
| 床仕様 | CFシート |
| セキュリティ | 無 |
| 利用時間 | 24時間 |
| シャッター | 無 |
| 照明設備 | 有 |
| 内装業者指定 | 無 |
| 駐車場 | |
|---|---|
| 状 況 | 空無 |
| 取引情報 | |
|---|---|
| 取引態様 | 媒介 |
| 客付 | 不可 |
この物件をチェックした人はこんな物件も見ています
- 居酒屋跡の店舗です。

北海道旭川市東光7条8丁目-1-1
40.66m2(12.30坪)
66,000円(税込)
- 国道40号線に面した店舗併用住宅です。

北海道旭川市旭町2条3丁目-
155.37m2(47.00坪)
56,017円(税込)
- 居住用の平屋として使用していた物件ですが、この度テナントに変更致しました。 敷地に余裕が無いので車を置くには十分なスペースがありませんが、玄関前に普通車を1台置いていたようです。 倉庫としての利用の他、アトリエや作業場などにいかがでしょうか?

北海道旭川市東光7条6-3-7
53.46m2(16.17坪)
45,000円(税込)
- 環状線と旭川新道に面する角地です。 駐車場は1台2000円で15台まで使用可能。 以前はリサイクルショップでした。 物販店舗だけでなく、ショールームや事務所・倉庫等にも利用できます。 高速インターチェンジにも近くアクセスが良い立地です。

北海道旭川市末広7条4丁目-1-5
226.37m2(68.48坪)
220,000円(税込)
- 環状線沿いのマンション1階部分のテナント物件です。事務所や整体院等におススメ。

北海道旭川市東光11条6-6-10
69.30m2(20.96坪)
110,000円(税込)
今日チェックした物件
お急ぎの方はお電話からお気軽にどうぞ!
0166-33-4338 営業時間 / 平日 9:30~18:30 定休日 / 不定休


0166-33-4338


















0166-33-4338