情報更新日:2025年02月07日/広告有効期限:なし
表示閲覧回数(過去30日間):18
お急ぎの方はお電話からお気軽にどうぞ!
0166-33-4338 営業時間 / 平日 9:30~18:30 定休日 / 不定休
>物件詳細情報
| 基本情報 | |
|---|---|
| 物件番号 | 00001323 |
| 店舗形態 | 事務所 |
| オススメ業種 | |
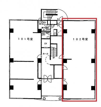
| 物件名 | スペーシア旭川一条通 102号 |
| 物件の状態 | 空き |
| 引越し時期 | 即 |
| 契約形態と期間 |
普通 |
| 所在地・交通 | |
|---|---|
| 所在地 | 北海道旭川市1条通(1〜17丁目)10丁目-342-2 |
| 交 通1 | 旭川電気軌道1条9丁目 徒歩2分 |
| 交 通2 | - |
| 賃料 | |
|---|---|
| 賃 料 | 220,000円(税込) |
| 敷 金 |
3ヶ月 |
| その他 | |
|---|---|
| 備考 | ◆袖看板使用料5,000円~8,000円(税別) ◆屋上看板50,000円(税別) ◆共益費は賃料に含みます ◆個別空調/機械警備 ◆ゴミ処理代3,000円~10,000円(税別) ◆保証会社加入必須 |
| 建物 | |
|---|---|
| 建物構造 | 鉄筋コンクリート造 |
| 建物階建て |
地上6階 |
| 施工年月 | 1988(昭和63)年 08月 |
| 募集物件の階数 | 地上 1階 102号室 |
| 契約面積 | 127.10m2(38.45坪) |
| 設備 | |
|---|---|
| エレベータ | 有 |
| トイレ | 有/共用 |
| 給湯室 | 無 |
| キッチン | 有/共用 |
| セキュリティ | 機械警備 |
| シャッター | 無 |
| 照明設備 | 有 |
| 内装業者指定 | 無 |
| 駐車場 | |
|---|---|
| 状 況 | 近隣 |
| 取引情報 | |
|---|---|
| 取引態様 | 媒介 |
| 客付 | 不可 |
この物件をチェックした人はこんな物件も見ています
- 旭川北IC近くの工場兼倉庫です。土間コンクリート、シャッターを改修済みです。

北海道旭川市東鷹栖東2条4-1911-1
374.26m2(113.21坪)
330,000円(税込)
- 買物公園と4条本通りに面したテナントビルです!諸条件相談可能です。

北海道旭川市4条通(1〜17丁目)8丁目-1705-7
198.11m2(59.93坪)
461,461円(税込)
- 市内中心部商店街ビル1階路面店舗です。物販のみ可能!

北海道旭川市3条通(1〜17丁目)8丁目-438
20m2(6.05坪)
66,000円(税込)
- 南6条通の沿いの商業施設が並んだ複合店舗!1階はカラオケ店となっております。諸条件相談可能☆

北海道旭川市東光7条1-5-10
323.58m2(97.88坪)
330,000円(税込)
- 環状線沿いの事務所向け物件です。

北海道旭川市豊岡13条7-1-6
156.20m2(47.25坪)
165,000円(税込)
今日チェックした物件
- 中心部のオフィスビル1棟での募集です。 契約条件により賃料・敷金は相談とさせて頂きます。
-

北海道旭川市2条通(1〜17丁目)9丁目-147-1
1,388.43m2(420.00坪)
賃料未定
- 事務所向け物件。駐車場10台利用相談可能。(空き状況都度確認)
-

北海道旭川市東光1条2-2-2
111.50m2(33.73坪)
165,000円(税込)
- 中心部にあるテナントビル☆彡新耐震基準に合わせた補強工事をしているので安心♪♪
-

北海道旭川市2条通(1〜17丁目)9丁目-228番地の2
39.57m2(11.97坪)
79,002円(税込)
- 旭川駅徒歩圏内のクリニックビル。医療業歓迎!その他業種も相談可能です!
-

北海道旭川市1条通(1〜17丁目)8丁目-右1-7号
170.63m2(51.62坪)
283,855円(税込)
お急ぎの方はお電話からお気軽にどうぞ!
0166-33-4338 営業時間 / 平日 9:30~18:30 定休日 / 不定休


0166-33-4338














0166-33-4338