情報更新日:2022年04月03日/広告有効期限:なし
表示閲覧回数(過去30日間):14
お急ぎの方はお電話からお気軽にどうぞ!
0166-33-4338 営業時間 / 平日 9:30~18:30 定休日 / 不定休
>物件詳細情報
| 基本情報 | |
|---|---|
| 物件番号 | 00001195 |
| 店舗形態 | 事務所 |
| オススメ業種 | |
| 物件名 | 一条緑橋通ビル |
| 物件の状態 | 空き |
| 引越し時期 | 即 |
| 契約形態と期間 |
普通 |
| 所在地・交通 | |
|---|---|
| 所在地 | 北海道旭川市1条通(1〜17丁目)8丁目-542-4 |
| 交 通1 | 旭川電気軌道1条8丁目 徒歩1分 |
| 交 通2 | 函館本線旭川駅 徒歩4分 |
| 賃料 | |
|---|---|
| 賃 料 | 56,540円(税込) |
| 敷 金 |
308,400円 |
| 共益費・管理費 | 16,962円(税込) |
| その他 | |
|---|---|
| 備考 | ・空調設備使用時間 9:00~18:00※時間外使用1,000円(税別)/時間 ・エレベーター 2基 ・ビル使用可能時間 8:00~21:30 ・正面玄関開閉時間 8:00~20:00週日 ・袖看板使用料 10,000円(税別)※1,750×930の両面 |
| 建物 | |
|---|---|
| 建物構造 | 鉄骨鉄筋コンクリート造 |
| 建物階建て |
地上9階 |
| 施工年月 | 1973(昭和48)年 08月 |
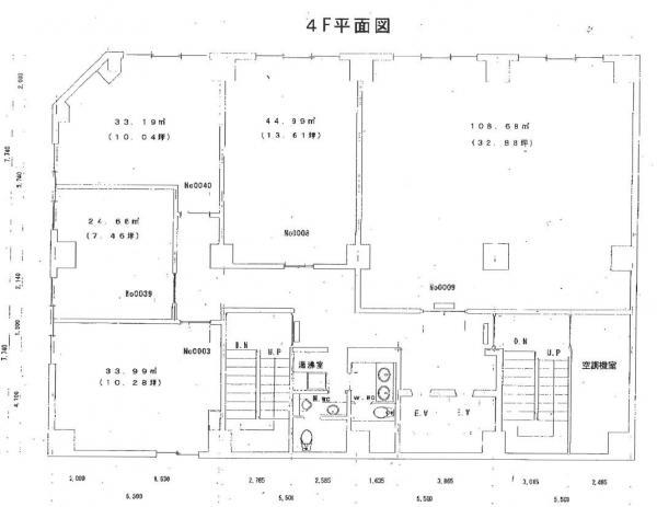
| 募集物件の階数 | 地上 4階 3号室 |
| 契約面積 | 33.99m2(10.28坪) |
| 設備 | |
|---|---|
| 水道 | 公営 |
| 下水道 | 公共下水 |
| エレベータ | 有 |
| トイレ | 有/共用 |
| 給湯室 | 有/共用 |
| キッチン | 有/共用 |
| 照明設備 | 有 |
| 内装業者指定 | 無 |
| 駐車場 | |
|---|---|
| 状 況 | 近隣 |
| 取引情報 | |
|---|---|
| 取引態様 | 媒介 |
| 客付 | 不可 |
この物件をチェックした人はこんな物件も見ています
- 住宅街に位置する貸店舗です。バス通り沿いに面しております。

北海道旭川市東光16条6-3-18
36.93m2(11.17坪)
66,000円(税込)
- あたご動物園通り沿い1階テナント物件。

北海道旭川市豊岡5条4丁目-2-20
78.39m2(23.71坪)
88,000円(税込)
- バス通り沿いの貸店舗物件です。物販やサービス業向け。

北海道旭川市豊岡5条1-4-13
77.76m2(23.52坪)
55,000円(税込)
- 買物公園通りに面したテナントビル。美容室、サロン向けの店舗です。

北海道旭川市3条通(1〜17丁目)8丁目-1705-29
104.07m2(31.48坪)
165,000円(税込)
- 国道39号線沿い。4条通に面しているのでアクセス良好!駐車場はピロティ部分となります♪物置スペースも6坪ほどありテナントスペース部分と合わせると60坪と広々と利用できます!

北海道旭川市4条通(1〜17丁目)17-1692-2
180.90m2(54.72坪)
247,500円(税込)
今日チェックした物件
- ワンフロアーに6店舗が並ぶ あさひかわ森の5・7横丁の貸店舗です!
-

北海道旭川市5条通(1〜17丁目)7丁目-1615-7
14.54m2(4.40坪)
60,500円(税込)
- 居酒屋店の居抜なので即開業可能♪カウンター、小上がり両方掘りこたつ(^^)
-

北海道旭川市3条通(1〜17丁目)5丁目-1353-1
45m2(13.61坪)
53,460円(税込)
- 中心部の元パチンコ店跡の貸テナント物件。1階フロアと併設して利用可能(別途賃料かかります)
-

北海道旭川市3条通(1〜17丁目)7-443-2
259.50m2(78.50坪)
604,450円(税込)
- 4条通沿い事務所物件、飲食居抜物件です☆彡
-

北海道旭川市4条通(1〜17丁目)8-1703-54
58.49m2(17.69坪)
145,942円(税込)
- バス通り徒歩圏の立地です。2階以上の階は住居専用区画です。元保育園として使われていました。
-

北海道旭川市1条通(1〜17丁目)3丁目-168-1
198m2(59.90坪)
209,000円(税込)
お急ぎの方はお電話からお気軽にどうぞ!
0166-33-4338 営業時間 / 平日 9:30~18:30 定休日 / 不定休


0166-33-4338













0166-33-4338