情報更新日:2023年10月02日/広告有効期限:なし
表示閲覧回数(過去30日間):22
お急ぎの方はお電話からお気軽にどうぞ!
0166-33-4338 営業時間 / 平日 9:30~18:30 定休日 / 不定休
>物件詳細情報
| 基本情報 | |
|---|---|
| 物件番号 | 00000923 |
| 店舗形態 | 事務所, 店舗 |
| オススメ業種 | 事務所 |
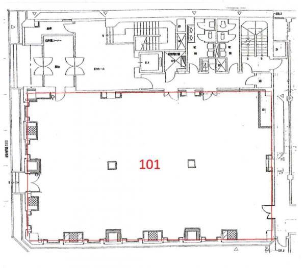
| 物件名 | 旭川三条緑橋ビル(101号室) |
| 物件の状態 | 空き |
| 引越し時期 | 相談 |
| 契約形態と期間 |
普通 |
| 所在地・交通 | |
|---|---|
| 所在地 | 北海道旭川市3条通(1〜17丁目)9丁目-左1 |
| 交 通1 | 旭川電気軌道3条9丁目 徒歩1分 |
| 交 通2 | 函館本線旭川駅 徒歩10分 |
| 賃料 | |
|---|---|
| 賃 料 | 723,008円(税込) |
| 敷 金 |
6ヶ月 |
| その他 | |
|---|---|
| 備考 | ・物販店舗に用途変更済み、業種等ご相談ください ・LED照明/個別空調/個別警備/立駐24時間対応/建物耐震改修工事済み ・専用駐車場有り(空き状況は都度確認) |
| 建物 | |
|---|---|
| 建物構造 | 鉄骨鉄筋コンクリート造 |
| 建物階建て |
地上7階 地下1階 |
| 施工年月 | 1972(昭和47)年 09月 |
| 募集物件の階数 | 地上 1階 101号室 |
| 契約面積 | 271.60m2(82.16坪) |
| 用途地域 | 商業地域 |
| 設備 | |
|---|---|
| 水道 | 公営 |
| 下水道 | 公共下水 |
| エレベータ | 有 |
| エアコン | 有り/個別 |
| 床仕様 | Pタイル |
| セキュリティ | 機械警備 |
| 照明設備 | 有 |
| 駐車場 | |
|---|---|
| 状 況 | 空有 |
| 敷 金 | 180,000円 |
| 取引情報 | |
|---|---|
| 取引態様 | 媒介 |
| 客付 | 可 |
この物件をチェックした人はこんな物件も見ています
- 市内中心部商店街ビル1階路面店舗です。物販のみ可能!

北海道旭川市3条通(1〜17丁目)8丁目-438
20m2(6.05坪)
66,000円(税込)
- 南6条通の沿いの商業施設が並んだ複合店舗!1階はカラオケ店となっております。諸条件相談可能☆

北海道旭川市東光7条1-5-10
323.58m2(97.88坪)
330,000円(税込)
- 旭川北IC近くの工場兼倉庫です。土間コンクリート、シャッターを改修済みです。

北海道旭川市東鷹栖東2条4-1911-1
374.26m2(113.21坪)
330,000円(税込)
- 買物公園と4条本通りに面したテナントビルです!諸条件相談可能です。

北海道旭川市4条通(1〜17丁目)8丁目-1705-7
198.11m2(59.93坪)
461,461円(税込)
- 中心部、事務所物件!!大通りに近く利便性の良い立地です。

北海道旭川市7条通(18〜25丁目)18-3916-2
56.22m2(17.01坪)
77,000円(税込)
今日チェックした物件
お急ぎの方はお電話からお気軽にどうぞ!
0166-33-4338 営業時間 / 平日 9:30~18:30 定休日 / 不定休


0166-33-4338













0166-33-4338