情報更新日:2024年06月24日/広告有効期限:なし
表示閲覧回数(過去30日間):27
お急ぎの方はお電話からお気軽にどうぞ!
0166-33-4338 営業時間 / 平日 9:30~18:30 定休日 / 不定休
>物件詳細情報
| 基本情報 | |
|---|---|
| 物件番号 | 00000664 |
| 店舗形態 | 事務所 |
| オススメ業種 | |
| 物件名 | 丸伸ビル(4-A号室) |
| 物件の状態 | 空き |
| 引越し時期 | 即 |
| 契約形態と期間 |
普通 |
| 所在地・交通 | |
|---|---|
| 所在地 | 北海道旭川市7条通(1〜17丁目)8丁目- |
| 交 通1 | 旭川電気軌道市役所前 徒歩2分 |
| 交 通2 | 函館本線旭川駅 徒歩16分 |
| 賃料 | |
|---|---|
| 賃 料 | 143,000円(税込) |
| 敷 金 |
6ヶ月 |
| 共益費・管理費 | 35,200円(税込) |
| その他 | |
|---|---|
| 備考 | ・現状有姿で引き渡しとなります。 ・テナント保険要加入 ・審査内容によっては保証会社をご利用頂く場合があります。 |
| 建物 | |
|---|---|
| 建物構造 | 鉄骨鉄筋コンクリート造 |
| 建物階建て |
地上8階 |
| 施工年月 | 1984(昭和59)年 06月 |
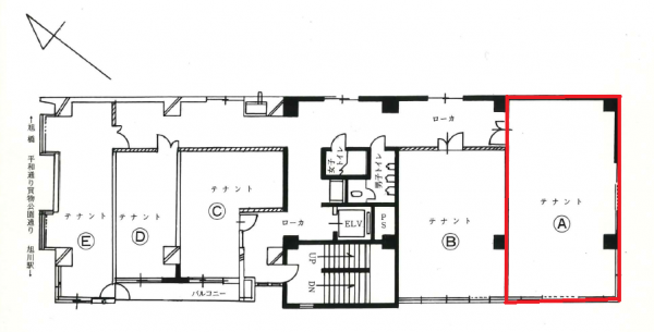
| 募集物件の階数 | 地上 4階 A号室 |
| 契約面積 | 66.12m2(20.00坪) |
| 設備 | |
|---|---|
| 水道 | 公営 |
| 下水道 | 公共下水 |
| ガス | 都市ガス |
| エレベータ | 有 |
| エアコン | 無 |
| トイレ | 有/共用 |
| 給湯室 | 無 |
| キッチン | 有/共用 |
| ネット環境 | 無 |
| セキュリティ | 無 |
| 利用時間 | 時間制限有 |
| シャッター | 無 |
| 照明設備 | 有 |
| 駐車場 | |
|---|---|
| 状 況 | 無し |
| 取引情報 | |
|---|---|
| 取引態様 | 媒介 |
| 客付 | 可 |
この物件をチェックした人はこんな物件も見ています
- 市内中心部商店街ビル1階路面店舗です。物販のみ可能!

北海道旭川市3条通(1〜17丁目)8丁目-438
20m2(6.05坪)
66,000円(税込)
- 旭川北IC近くの工場兼倉庫です。土間コンクリート、シャッターを改修済みです。

北海道旭川市東鷹栖東2条4-1911-1
374.26m2(113.21坪)
330,000円(税込)
- 買物公園と4条本通りに面したテナントビルです!諸条件相談可能です。

北海道旭川市4条通(1〜17丁目)8丁目-1705-7
198.11m2(59.93坪)
461,461円(税込)
- 買物公園沿いの事務所向け物件です!

北海道旭川市7条通(1〜17丁目)8丁目-38-50
39.25m2(11.87坪)
71,500円(税込)
- 中心部、事務所物件!!大通りに近く利便性の良い立地です。

北海道旭川市7条通(18〜25丁目)18-3916-2
56.22m2(17.01坪)
77,000円(税込)
今日チェックした物件
- 永山パワーズショッピングセンター内の空きテナントです。 店舗前にある敷地内の駐車場は来客用の為、従業員用駐車場が敷地外にあります。
-

北海道旭川市永山11条4丁目-119-49
135.86m2(41.10坪)
361,662円(税込)
- 買物公園沿い、ビル内事務所物件(^^♪
-

北海道旭川市4条通(1〜17丁目)8-
55.98m2(16.93坪)
55,000円(税込)
- 元スナック居抜き! 暖房設備なし。灯油ファンヒーター設置可!
-

北海道旭川市緑が丘3条3丁目-1-11
49.60m2(15.00坪)
66,000円(税込)
- 旭川中心部のビル。他業種相談可能。大幅改修済み。
-

北海道旭川市5条通(1〜17丁目)9丁目-1163-1
69.78m2(21.11坪)
139,326円(税込)
お急ぎの方はお電話からお気軽にどうぞ!
0166-33-4338 営業時間 / 平日 9:30~18:30 定休日 / 不定休


0166-33-4338


















0166-33-4338