情報更新日:2022年04月21日/広告有効期限:なし
表示閲覧回数(過去30日間):29
お急ぎの方はお電話からお気軽にどうぞ!
0166-33-4338 営業時間 / 平日 9:30~18:30 定休日 / 不定休
>物件詳細情報
| 基本情報 | |
|---|---|
| 物件番号 | 00000446 |
| 店舗形態 | 事務所 |
| オススメ業種 | 事務所, 塾・学校・教育関係 |
| 物件名 | 永山2-18店舗・事務所 |
| 物件の状態 | 空き |
| 引越し時期 | 即 |
| 契約形態と期間 |
普通 |
| 所在地・交通 | |
|---|---|
| 所在地 | 北海道旭川市永山2条18丁目-2-30 |
| 交 通1 | 道北バス永山2条18丁目 徒歩2分 |
| 交 通2 | - |
| 賃料 | |
|---|---|
| 賃 料 | 143,000円(税込) |
| 敷 金 |
260,000円 |
| その他 | |
|---|---|
| 備考 | 敷地内に駐車1台、敷地外に2~3台程駐車スペースの相談が可能です。 |
| 建物 | |
|---|---|
| 建物構造 | 鉄骨造 |
| 建物階建て |
地上2階 |
| 施工年月 | 1992(平成4)年 09月 |
| 募集物件の階数 | 地上 2階 左号室 |
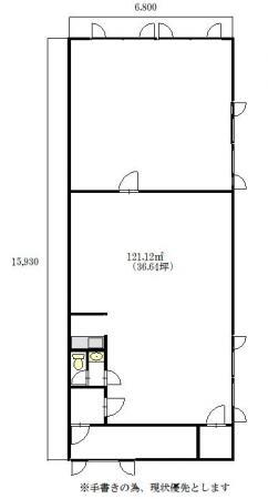
| 契約面積 | 121.12m2(36.64坪) |
| 設備 | |
|---|---|
| 水道 | 公営 |
| 下水道 | 公共下水 |
| ガス | 都市ガス |
| エレベータ | 無 |
| エアコン | 有 |
| トイレ | 有/専用 |
| 給湯室 | 有/専用 |
| キッチン | 有/専用 |
| ネット環境 | 有 |
| 床仕様 | CFシート |
| セキュリティ | 無 |
| 利用時間 | 24時間 |
| シャッター | 無 |
| 照明設備 | 有 |
| 内装業者指定 | 無 |
| 駐車場 | |
|---|---|
| 状 況 | 空有 |
| 取引情報 | |
|---|---|
| 取引態様 | 媒介 |
| 客付 | 不可 |
この物件をチェックした人はこんな物件も見ています
- 国道39号線沿い 倉庫物件です。

北海道旭川市永山3条21丁目-1-8
165.40m2(50.03坪)
165,000円(税込)
- 旭川北IC近くの工場兼倉庫です。土間コンクリート、シャッターを改修済みです。

北海道旭川市東鷹栖東2条4-1911-1
374.26m2(113.21坪)
330,000円(税込)
- 南6条通の沿いの商業施設が並んだ複合店舗!1階はカラオケ店となっております。諸条件相談可能☆

北海道旭川市東光7条1-5-10
323.58m2(97.88坪)
330,000円(税込)
- 市内中心部商店街ビル1階路面店舗です。物販のみ可能!

北海道旭川市3条通(1〜17丁目)8丁目-438
20m2(6.05坪)
66,000円(税込)
- 買物公園通りに面したテナントビル。美容室、サロン向けの店舗です。

北海道旭川市3条通(1〜17丁目)8丁目-1705-29
104.07m2(31.48坪)
165,000円(税込)
今日チェックした物件
- ワンフロアーに6店舗が並ぶ あさひかわ森の5・7横丁の貸店舗です!
-

北海道旭川市5条通(1〜17丁目)7丁目-1615-7
13.55m2(4.10坪)
60,500円(税込)
- カーブス、美容室、飲食店等が入っている複合商業施設の一角にある広々としたテナントです。倉庫兼事務所、ショールームにも最適です。
-

北海道旭川市春光7条9丁目-5-23
499.17m2(151.00坪)
330,000円(税込)
- サンロク街のテナントビルです!
-

北海道旭川市3条通(1〜17丁目)7丁目-425-1
46.28m2(14.00坪)
123,200円(税込)
- 緑道沿い平和通りの角地2階居酒屋居抜店舗です。
-

北海道旭川市7条通(1〜17丁目)8丁目-38-50
85.95m2(26.00坪)
165,000円(税込)
- 環状線沿い2階事務所物件です。
-

北海道旭川市忠和5条6丁目-2-14
66.11m2(20.00坪)
110,000円(税込)
お急ぎの方はお電話からお気軽にどうぞ!
0166-33-4338 営業時間 / 平日 9:30~18:30 定休日 / 不定休


0166-33-4338


















0166-33-4338