情報更新日:2024年10月28日/広告有効期限:なし
表示閲覧回数(過去30日間):14
お急ぎの方はお電話からお気軽にどうぞ!
0166-33-4338 営業時間 / 平日 9:30~18:30 定休日 / 不定休
>物件詳細情報
| 基本情報 | |
|---|---|
| 物件番号 | 00000436 |
| 店舗形態 | 事務所 |
| オススメ業種 | 事務所 |
| 物件名 | 旭川道銀ビル(D-25号) |
| 物件の状態 | 空き |
| 引越し時期 | 即 |
| 契約形態と期間 |
普通契約期間:2年間 |
| 所在地・交通 | |
|---|---|
| 所在地 | 北海道旭川市2条通(1〜17丁目)9丁目-228番地の2 |
| 交 通1 | 旭川電気軌道3条9丁目 徒歩2分 |
| 交 通2 | 函館本線旭川駅 徒歩8分 |
| 賃料 | |
|---|---|
| 賃 料 | 118,470円(税込) |
| 敷 金 |
538,500円 |
| 共益費・管理費 | 29,617円(税込) |
| その他 | |
|---|---|
| 備考 | ◆エレベーター2基 ◆1階エレベーターホールに自販機コーナー ◆暖房空調+個別GHP冷暖房(24時間対応) ◆共有会議室有(道銀ビルテナント様共用、要使用料) ◆24時間守衛常駐 ◆アスベストの使用はありません(検査済) ◆耐震工事実施済 |
| 建物 | |
|---|---|
| 建物構造 | 鉄筋コンクリート造 |
| 建物階建て |
地上6階 |
| 施工年月 | 1965(昭和40)年 12月 |
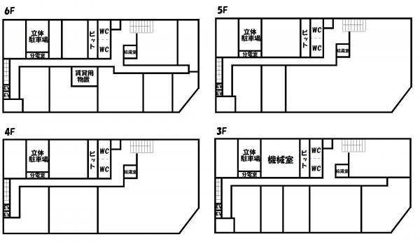
| 募集物件の階数 | 地上 4階 D-25号室 |
| 契約面積 | 59.33m2(17.95坪) |
| 設備 | |
|---|---|
| 水道 | 公営 |
| ガス | 都市ガス |
| エレベータ | 有 |
| トイレ | 有/共用 |
| 給湯室 | 有/共用 |
| 駐車場 | |
|---|---|
| 状 況 | 空有 |
| 駐車料金 | 15,000円(税込) |
| 取引情報 | |
|---|---|
| 取引態様 | 媒介 |
| 客付 | 不可 |
この物件をチェックした人はこんな物件も見ています
- 旭川北IC近くの工場兼倉庫です。土間コンクリート、シャッターを改修済みです。

北海道旭川市東鷹栖東2条4-1911-1
374.26m2(113.21坪)
330,000円(税込)
- 買物公園と4条本通りに面したテナントビルです!諸条件相談可能です。

北海道旭川市4条通(1〜17丁目)8丁目-1705-7
198.11m2(59.93坪)
461,461円(税込)
- 市内中心部商店街ビル1階路面店舗です。物販のみ可能!

北海道旭川市3条通(1〜17丁目)8丁目-438
20m2(6.05坪)
66,000円(税込)
- 南6条通の沿いの商業施設が並んだ複合店舗!1階はカラオケ店となっております。諸条件相談可能☆

北海道旭川市東光7条1-5-10
323.58m2(97.88坪)
330,000円(税込)
- 買物公園通りに面したテナントビル。美容室、サロン向けの店舗です。

北海道旭川市3条通(1〜17丁目)8丁目-1705-29
104.07m2(31.48坪)
165,000円(税込)
今日チェックした物件
お急ぎの方はお電話からお気軽にどうぞ!
0166-33-4338 営業時間 / 平日 9:30~18:30 定休日 / 不定休


0166-33-4338













0166-33-4338