情報更新日:2026年03月05日/広告有効期限:なし
表示閲覧回数(過去30日間):2
お急ぎの方はお電話からお気軽にどうぞ!
0166-33-4338 営業時間 / 平日 9:30~18:30 定休日 / 不定休
>物件詳細情報
| 基本情報 | |
|---|---|
| 物件番号 | 00000401 |
| 店舗形態 | 店舗 |
| オススメ業種 | 美容関係 |
| 物件名 | ヒサコーポレーション 2階右 |
| 物件の状態 | 空き |
| 引越し時期 | 即 |
| 契約形態と期間 |
普通 |
| 所在地・交通 | |
|---|---|
| 所在地 | 北海道旭川市4条通(1〜17丁目)8丁目- |
| 交 通1 | 旭川電気軌道4条8丁目 徒歩2分 |
| 交 通2 | 函館本線旭川駅 徒歩8分 |
| 賃料 | |
|---|---|
| 賃 料 | 賃料未定 |
| 敷 金 |
3ヶ月 |
| 共益費・管理費 | 3,000円(税込) |
| その他 | |
|---|---|
| 備考 | ・現状有姿で引き渡しとなります。 ・テナント保険要加入 ・審査状況によっては家賃保証をご利用頂く場合があります。 |
| 建物 | |
|---|---|
| 建物構造 | 鉄筋コンクリート造 |
| 建物階建て |
地上2階 |
| 施工年月 | 1995(平成7)年 07月 |
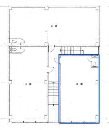
| 募集物件の階数 | 地上 2階 右号室 |
| 契約面積 | 78m2(23.60坪) |
| 用途地域 | 商業地域 |
| 設備 | |
|---|---|
| 水道 | 公営 |
| 下水道 | 公共下水 |
| ガス | 都市ガス |
| エレベータ | 無 |
| エアコン | 無 |
| トイレ | 有/専用 |
| 給湯室 | 有/専用 |
| キッチン | 有/専用 |
| ネット環境 | 無 |
| セキュリティ | 無 |
| 利用時間 | 24時間 |
| シャッター | 有/手動 |
| 照明設備 | 有 |
| 内装業者指定 | 無 |
| 駐車場 | |
|---|---|
| 状 況 | 無し |
| 取引情報 | |
|---|---|
| 取引態様 | 媒介 |
| 客付 | 可 |
この物件をチェックした人はこんな物件も見ています
- 買物公園通り沿いの複合テナントビルになります。美容室跡のテナント物件。

北海道旭川市4条通(1〜17丁目)8丁目-
78m2(23.60坪)
賃料未定
- 買物公園通りの旭川フードテラス内にあるテナントです。

北海道旭川市5条通(1〜17丁目)7丁目-1070-2
131.52m2(39.78坪)
198,000円(税込)
- 国道39号線沿い。4条通に面しているのでアクセス良好!駐車場はピロティ部分となります♪物置スペースも6坪ほどありテナントスペース部分と合わせると60坪と広々と利用できます!

北海道旭川市4条通(1〜17丁目)17-1692-2
180.90m2(54.72坪)
189,000円(税込)
- 平成21年に改装された1階テナントとなります。事務所向け物件です。

北海道旭川市1条通(1〜17丁目)12-125-4
100m2(30.25坪)
99,000円(税込)
- 買物公園通りに面したテナントビル。美容室、サロン向けの店舗です。

北海道旭川市3条通(1〜17丁目)8丁目-1705-29
104.07m2(31.48坪)
165,000円(税込)
今日チェックした物件
お急ぎの方はお電話からお気軽にどうぞ!
0166-33-4338 営業時間 / 平日 9:30~18:30 定休日 / 不定休


0166-33-4338


















0166-33-4338