情報更新日:2024年06月24日/広告有効期限:なし
表示閲覧回数(過去30日間):69
お急ぎの方はお電話からお気軽にどうぞ!
0166-33-4338 営業時間 / 平日 9:30~18:30 定休日 / 不定休
>物件詳細情報
| 基本情報 | |
|---|---|
| 物件番号 | 00000283 |
| 店舗形態 | 事務所 |
| オススメ業種 | 塾・学校・教育関係, 事務所 |
| 物件名 | 6・2ビル(5-A) |
| 物件の状態 | 空き |
| 引越し時期 | 即 |
| 契約形態と期間 | |
| 所在地・交通 | |
|---|---|
| 所在地 | 北海道旭川市6条通(1〜17丁目)2丁目-2471-5 |
| 交 通1 | 函館本線旭川駅 徒歩23分 |
| 交 通2 | 旭川電気軌道8条西-1 徒歩3分 |
| 賃料 | |
|---|---|
| 賃 料 | 74,800円(税込) |
| 敷 金 |
3ヶ月 |
| 共益費・管理費 | 12,000円(税込) |
| その他 | |
|---|---|
| 備考 | ◆インターネット接続可(ポテト) ◆駐車料 12,100円(ロードヒーティング) ◆駐車料 8,800円(砂利敷き) ※駐車場の空きは都度確認 水洗/都市ガス/照明/ガスセントラル暖房/エレベーター/エアコン/BS/ポテト |
| 建物 | |
|---|---|
| 建物構造 | 鉄筋コンクリート造 |
| 建物階建て |
地上7階 |
| 施工年月 | 2001(平成13)年 01月 |
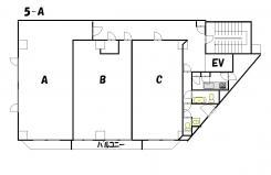
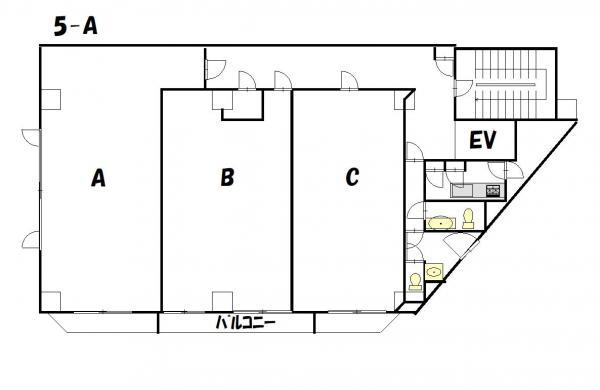
| 募集物件の階数 | 地上 5階 5-A号室 |
| 契約面積 | 62.24m2(18.83坪) |
| 設備 | |
|---|---|
| 水道 | 公営 |
| 下水道 | 公共下水 |
| ガス | 都市ガス |
| エレベータ | 有 |
| エアコン | 有り/個別 |
| トイレ | 有/共用 |
| 給湯室 | 有/共用 |
| キッチン | 有/共用 |
| ネット環境 | 無 |
| 照明設備 | 有 |
| 駐車場 | |
|---|---|
| 状 況 | 空有 |
| 取引情報 | |
|---|---|
| 取引態様 | 媒介 |
| 客付 | 可 |
この物件をチェックした人はこんな物件も見ています
- 旭川北IC近くの工場兼倉庫です。土間コンクリート、シャッターを改修済みです。

北海道旭川市東鷹栖東2条4-1911-1
374.26m2(113.21坪)
330,000円(税込)
- 市内中心部商店街ビル1階路面店舗です。物販のみ可能!

北海道旭川市3条通(1〜17丁目)8丁目-438
20m2(6.05坪)
66,000円(税込)
- 買物公園と4条本通りに面したテナントビルです!諸条件相談可能です。

北海道旭川市4条通(1〜17丁目)8丁目-1705-7
198.11m2(59.93坪)
461,461円(税込)
- 南6条通の沿いの商業施設が並んだ複合店舗!1階はカラオケ店となっております。諸条件相談可能☆

北海道旭川市東光7条1-5-10
323.58m2(97.88坪)
330,000円(税込)
- 買物公園通りに面したテナントビル。美容室、サロン向けの店舗です。

北海道旭川市3条通(1〜17丁目)8丁目-1705-29
104.07m2(31.48坪)
165,000円(税込)
今日チェックした物件
お急ぎの方はお電話からお気軽にどうぞ!
0166-33-4338 営業時間 / 平日 9:30~18:30 定休日 / 不定休


0166-33-4338













0166-33-4338